Description
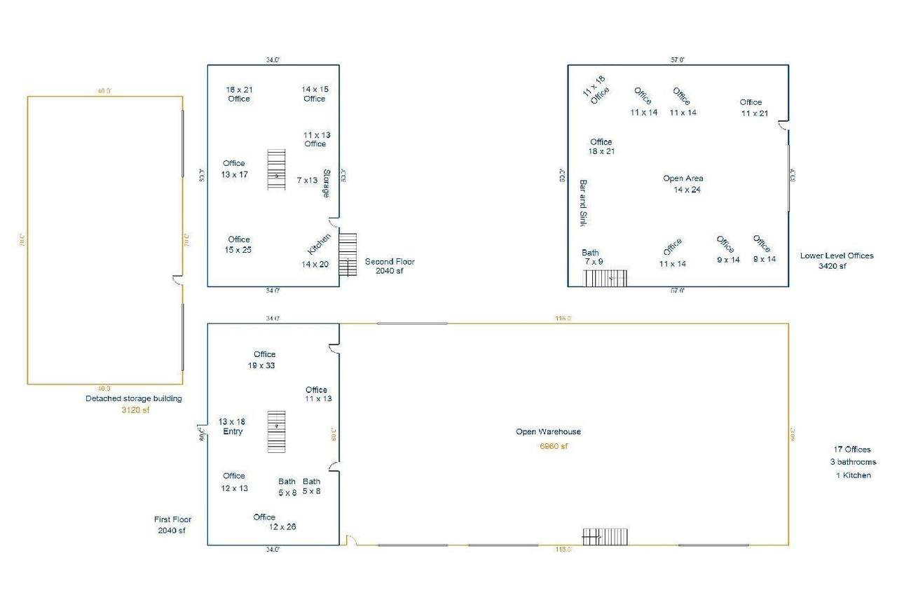
High quality warehouse/office building on West side. Suitable for warehouse, distribution, and manufacturing uses. Modern office building with 17 suites, 2 kitchens, 3 bathrooms, 2 large conference rooms, wood floors, huge windows in all offices. 17,580 total sq ft. The first floor includes 2,040 sq ft of office space as well as 7,000 sq ft of temperature controlled warehouse with 1 semi dock door, 2 service door, steel structures/no beams,18-20 feet ceilings. The second floor includes 2,040 sq ft of office space and the lower level includes 3,420 sq ft of additional office space. There is a SEPARATE 3120 sq ft heated warehouse with 1 service door located next door. Loads of parking. 61 kWp array net metered solar with metal roof. Information attached. Parking for around 40 cars and easy semi pull in pull out. Close to I69, Bloomington and IU. See attached video. Will consider rent to own.
-
0BEDS
-
1.18ACRES
-
0BATHS
-
01/2 BATHS
School Ratings & Info
Description
High quality warehouse/office building on West side. Suitable for warehouse, distribution, and manufacturing uses. Modern office building with 17 suites, 2 kitchens, 3 bathrooms, 2 large conference rooms, wood floors, huge windows in all offices. 17,580 total sq ft. The first floor includes 2,040 sq ft of office space as well as 7,000 sq ft of temperature controlled warehouse with 1 semi dock door, 2 service door, steel structures/no beams,18-20 feet ceilings. The second floor includes 2,040 sq ft of office space and the lower level includes 3,420 sq ft of additional office space. There is a SEPARATE 3120 sq ft heated warehouse with 1 service door located next door. Loads of parking. 61 kWp array net metered solar with metal roof. Information attached. Parking for around 40 cars and easy semi pull in pull out. Close to I69, Bloomington and IU. See attached video. Will consider rent to own.
© 2026 Indiana Regional MLS All rights reserved. The data relating to real estate for sale or lease on this web site comes in part from IRMLS. IDX information is provided exclusively for consumers' personal, non-commercial use and may not be used for any purpose other than to identify prospective properties consumers may be interested in purchasing. Information is deemed reliable but is not guaranteed accurate by the MLS or McAfee Home Group | Century 21 Realty, Inc.. Data last updated: 2026-02-10T00:27:49.06.
